Chalet de nueva construcción con vistas al campo de golf, diseñado por Fran Silvestre.
Propiedad de 1.050 m² sobre una parcela de 2.875 m², distribuida en tres plantas, con siete dormitorios, siete baños y garaje para cuatro vehículos.
Villa Laván es una obra arquitectónica singular que destaca por su presencia moderna y su perfecta armonía con el entorno. Ubicada en una de las áreas más exclusivas de La Moraleja, esta vivienda de líneas limpias y contemporáneas se organiza en dos volúmenes superpuestos que, al desplazarse entre sí, crean terrazas cubiertas y abren la casa hacia el paisaje y el campo de golf.
La estructura se apoya en muros laterales robustos, lo que permite liberar completamente las fachadas hacia el jardín mediante amplios ventanales. Esto refuerza la horizontalidad del diseño y llena los interiores de abundante luz natural.
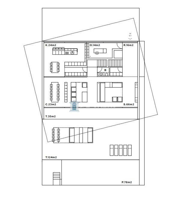
Distribución de la vivienda:
Planta baja:
Un elegante vestíbulo de entrada conduce a la zona de día, donde predominan la luminosidad y el diseño en un espacio abierto y refinado. La cocina, equipada con electrodomésticos de última generación y acabados de vanguardia, combina estética y funcionalidad. El salón-comedor, con acceso directo al porche, al jardín y a la piscina, ofrece vistas panorámicas al campo de golf y se convierte en el centro vital del hogar, ideal para disfrutar tanto del interior como del exterior.
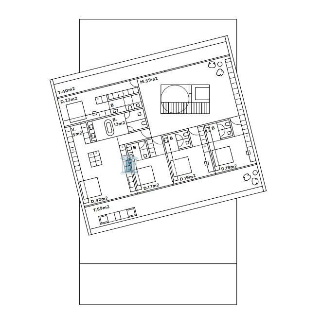
Primera planta:
La zona de noche cuenta con cinco dormitorios en suite, todos con vestidor y amplios ventanales que enmarcan el entorno natural. Una acogedora sala de estar central crea un espacio íntimo para el descanso o la vida familiar, con vistas abiertas y una atmósfera de calma.
Planta sótano:
Dedicada al bienestar, incluye una piscina interior climatizada, zona de spa y área de relax. Además, dispone de dormitorio de servicio, trastero, despensa y garaje con capacidad para cuatro coches, con acceso directo al interior de la vivienda.
Características adicionales:
Sistema completo de domótica
Suelo radiante y climatización sectorizada
Seguridad 24 horas
Orientación optimizada para aprovechar la luz y las vistas
Acabados de primer nivel en todos los espacios
























