Chalet independiente de lujo en La Moraleja.
DISTRIBUCIÓN
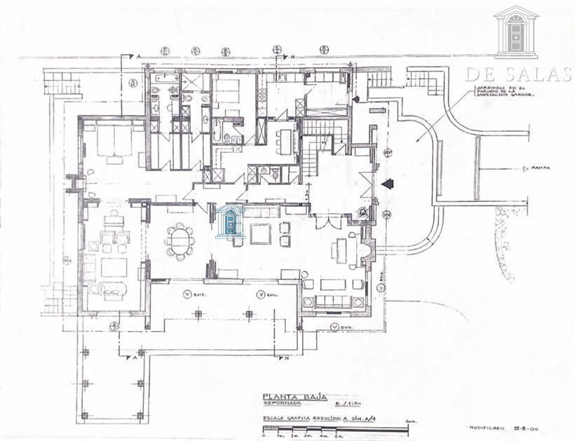
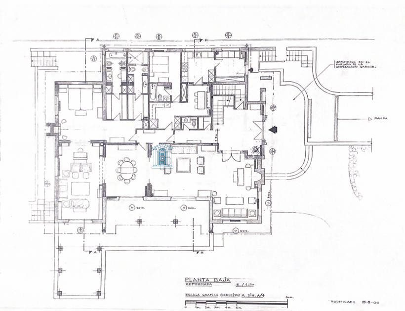
PLANTA PRINCIPAL
– Hall (22 m2) y salón con chimenea (65 m2)
– Comedor (22 m2)
– Aseo de invitados
– 1 Dormitorio principal (32 m2) y despacho (34 m2) 2 baños en suite y 2 vestidores
– Cocina con office (25 m2), y lavadero (6,50 m2)
– Piscina y jacuzzi climatizado
– Pista de tenis
– 2 Vestidores exteriores
PRIMERA PLANTA
– Salón abuhardillado con chimenea (48 m2)
– 4 Dormitorios (1 Dormitorio 36 m2 con baño en suite y vestidor), (1 Dormitorio 35 m2 con baño en suite y vestidos), (1 Dormitorio 15 m2 con baño en suite), (1 Dormitorio 12 m2 con baño en suite 7,50 m2)
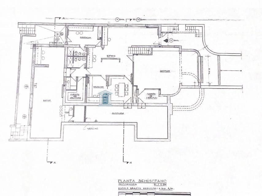
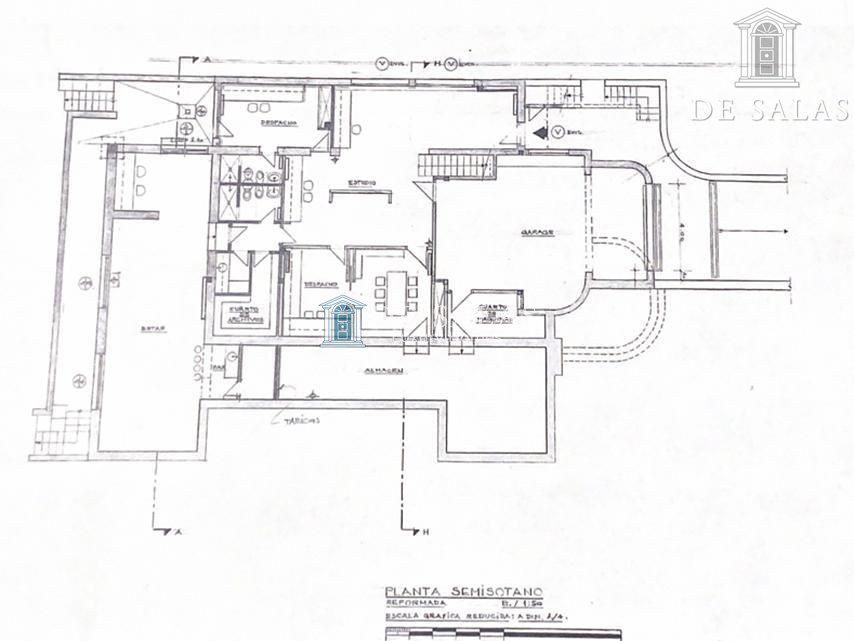
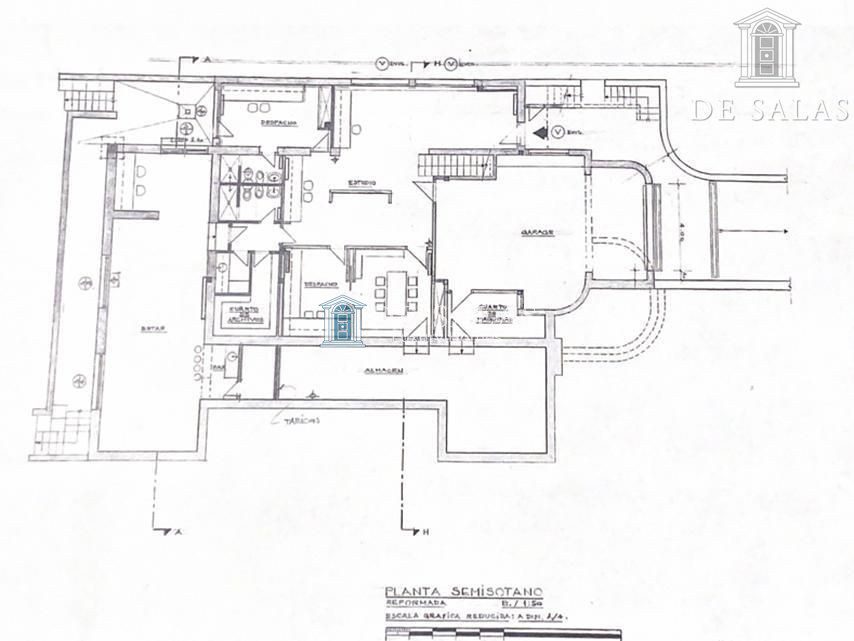
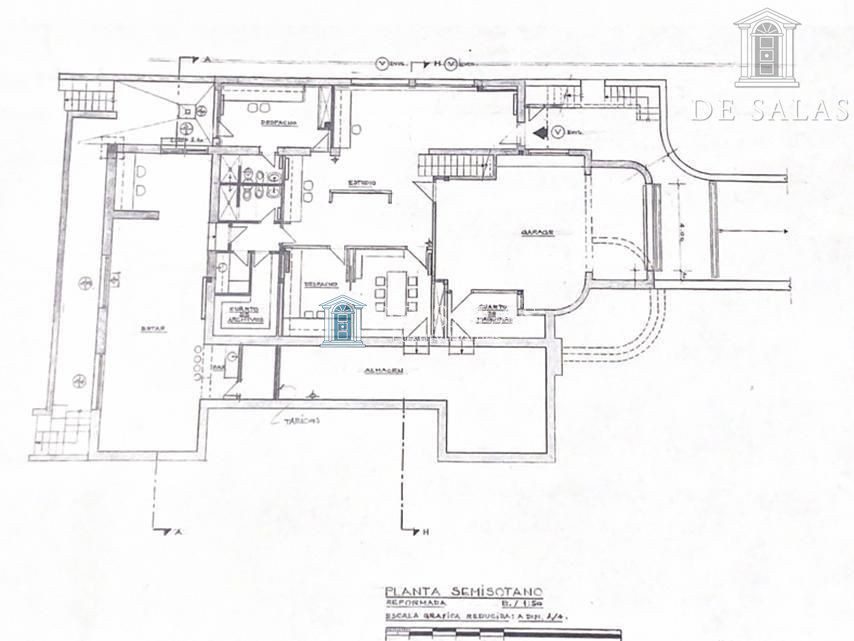
SÓTANO
– Salón (80 m2)
– Sala de cine (38 m2) con salida al jardín
– Despacho (12 m2) con kitchenette y baño
– 1 Baño
– Despensa
– 1 Dormitorio con baño en suite
– Garaje: (4 plazas) 50 m2 y cuarto de calderas
– Calefacción de gasóleo y aire acondicionado

























