De Salas vende exclusivo piso dúplex bajo con jardín, dentro de urbanización cerrada, ubicado en una de las mejores zonas del Soto de La Moraleja.
La vivienda tiene un magnífico jardín privado de 80 m², con orientación sur, en un entorno tranquilo y exclusivo, con salida directa a la piscina comunitaria.
Se encuentra situado escasos minutos de la Plaza de la Moraleja, próximo a zona comercial, restauración y a los principales colegios de la zona.
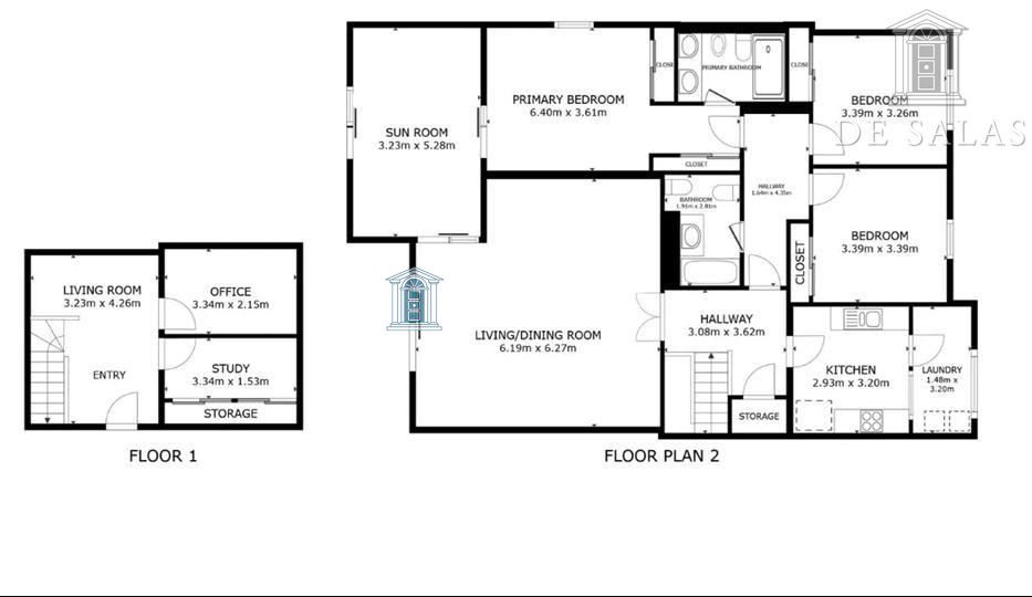
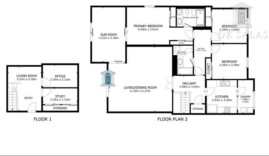
La vivienda se distribuye de la siguiente forma:
PLANTA BAJA PRINCIPAL:
Hall de entrada
Amplio y luminoso salón-comedor con acceso directo al jardín privado
Cocina amueblada con práctico tendedero.
3 dormitorios y 2 baños. El principal en suite con vestidor y vistas sobre el jardín privado
PLANTA SEMISÓTANO:
2 habitaciones que pueden ser destinadas a dormitorio, despacho ó lo que se desee.
Un amplio cuarto de juegos.
Se puede realizar un baño, dado que las instalaciones están preparadas para que se realice.
CARACTERÍSTICAS DE LA VIVIENDA:
Armarios empotrados en todas las habitaciones
Orientación sur, que dota a la vivienda de gran luminosidad
Calefacción con caldera individual de gas natural
Urbanización privada con conserje y solo 16 vecinos
Piscina comunitaria y zonas verdes ajardinadas
2 plazas de garaje y 2 trasteros incluidos en el precio.
Características básicas
202 m² construidos
5 habitaciones
2 baños
Plaza de garaje incluida en el precio
Segunda mano/buen estado
Armarios empotrados
Trastero
Orientación sur
Construido en 1997
Calefacción individual: Gas natural
Acceso y vivienda adaptados para personas con movilidad reducida
Edificio
Bajo exterior
Con ascensor
























