Les presentamos EN EXCLUSIVA este magnífico chalet independiente A ESTRENAR de 2200 m2 construidos, que se encuentra situado sobre una parcela de hectárea en la zona sur de La Moraleja. Por su excelente localización goza de mucha privacidad y tranquilidad. Es de nueva construcción en los que se han incorporado materiales de gran calidad. Sus residentes podrán disfrutar de un chalet con grandes y luminosas estancias entre las que destacamos su gran zona de recibo con un gran hall recibidor con dos alturas y una cubierta acristalada, un salón principal con tres zonas diferenciadas y un estupendo comedor. En la primera planta está la zona más privada de la casa donde encontramos los amplios dormitorios que se distribuyen alrededor del luminoso hall central. Destacamos sus estupendas zonas de ocio y deportes como su piscina interior climatizada y sauna, sala de cine, baño completo bodega etc. También dispone de zona de servicio con dos dormitorios. Cuenta con techos de más de 3 metros de altura. Todo ello con un entorno natural inigualable, rincones de ensueño, pista deportiva y piscina exterior.
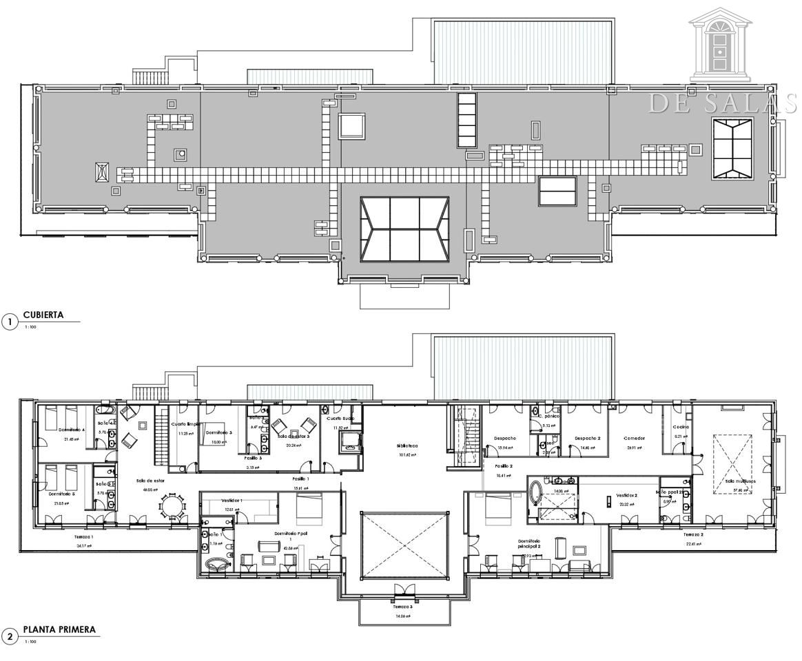
DISTRIBUCIÓN
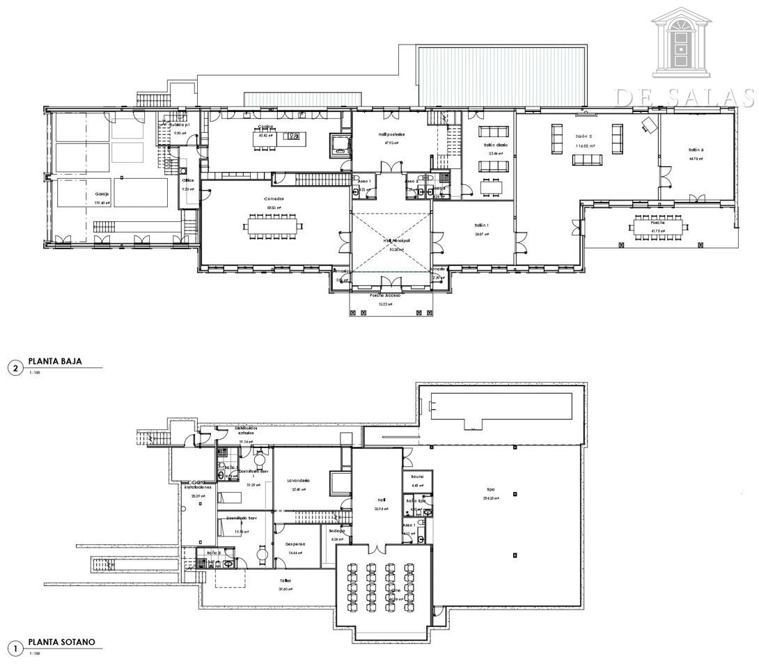
PLANTA BAJA
– Hall principal (53 m2)
– 2 Aseos y 2 gabaneros
– Hall posterior (48 m2)
– Gran salón con tres estancias de (37 m2, 116 m2 y 45 m2)
– Comedor (86 m2)
– Cocina (62 m2)
– 1 Dormitorio biblioteca
– 1 Baño
– Garaje: (6 plazas 120 m2)
– Porche (42 m2)
– Piscina exterior y pozo
– Pista de pádel
PRIMERA PLANTA
– Hall distribuidor o biblioteca (102 m2)
– 5 Dormitorios todos con baño en suite (1 Dormitorio principal de 100 m2 con 2 baños en suite y vestidor 23 m2) (1 Dormitorio de 44 m2 en suite y vestidor de 13 m2), (1 Dormitorio 42 m2 en suite con sala de estar), (1 Dormitorio de 21 m2), (1 Dormitorio 22 m2).
– 5 Baños
– 2 Cuartos de ropa blanca
– Sala multiusos (58 m2)
– 2 Despachos (16 m2) y (15 m2)
– Comedor (27 m2)
– Cocina (8 m2)
– Cuarto de seguridad (5 m2)
SÓTANO
– Hall (34 m2)
– Sala de cine (61 m2)
– Bodega (6 m2)
– Spa con sauna (259 m2) Piscina interior climatizada y sauna, baño spa (5 m2)
– Aseo de invitados
– Despensa (14 m2)y cuarto de lavandería (32 m2)
– 2 Dormitorios de servicio y baño
– Taller (40 m2)
– Calefacción de gas natural y aire acondicionado
– Pozo
– Alarma






























