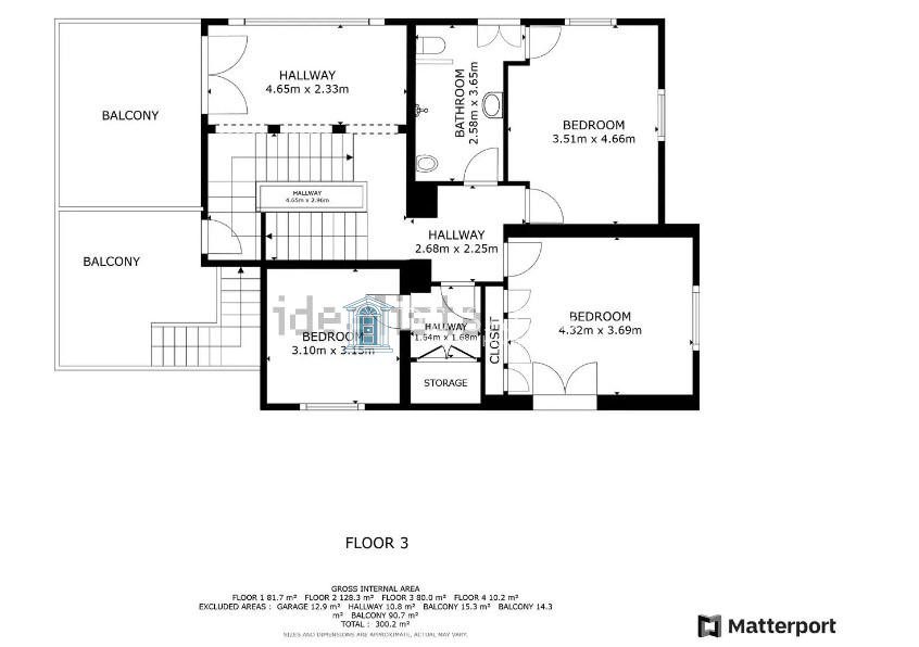
La distribución es la siguiente:
Planta baja: dispone de una amplia plaza de parking privado cubierta, dos dormitorios, trastero o despensa y dos baños completos y acceso a un porche de 52 m2.
Planta primera: dispone de Hall de entrada, salón-comedor, cocina, baño, aseo, un dormitorio con balcón y antesala. Aquí usted podrá disfrutar de una terraza de 50 m2.
Planta segunda: dispone de tres dormitorios, estudio, baño y dos terrazas de 10 y 11 m2.
Planta tercera: dispone de un dormitorio/estudio de trabajo y una terraza de 57 m2.























